President Steinstraat
Foto

President Steinstraat

2312ZS Leiden, Morsdistrict

€0
Huur per maand
70m²
Oppervlakte
3
Kamers
Maisonnette
Type

Omschrijving

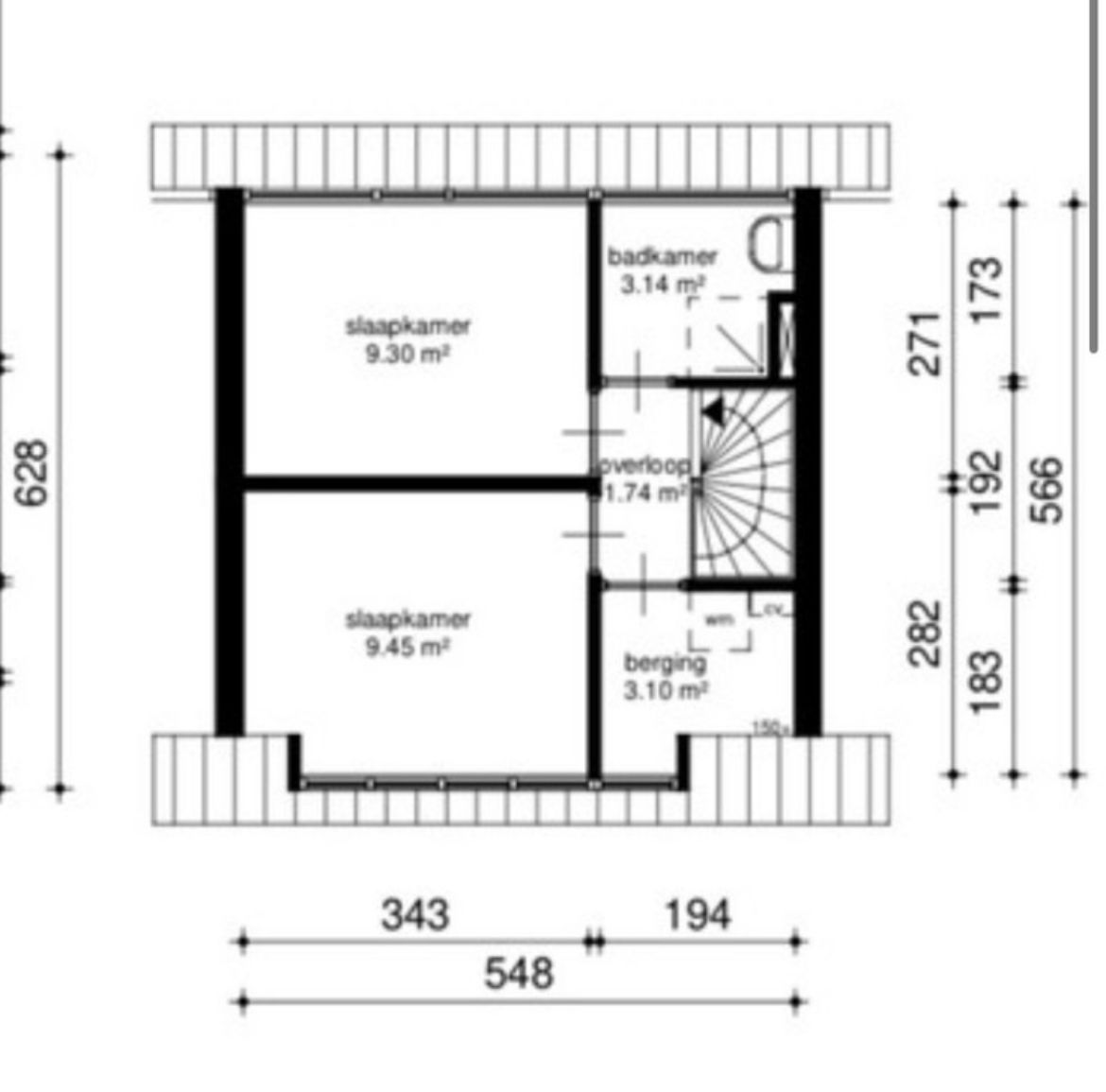
De woning is toegankelijk via een entree op de begane grond met een trap naar de eerste verdieping. Hier bevinden zich de hal, keuken, woonkamer, een toilet en een ruime balkon. Er is tevens een praktische opbergkast aanwezig. Op de tweede verdieping zijn twee slaapkamers en een doucheruimte. Een aparte ruimte is voorzien van een wasmachine-aansluiting.

Kenmerken

Bouwjaar
Onbekend
Verdieping
1
Balkon

Interesse in deze woning?

Schrijf je gratis in en neem contact op met de bewoner

Gratis inschrijven

Al een account? Inloggen