Koolmees
Foto

Koolmees

1628AS Hoorn, Wijk 32 Kersenboogerd-Noord

€0
Huur per maand
70m²
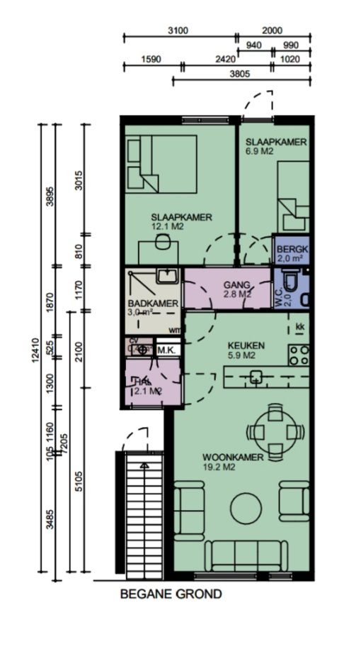
Oppervlakte
3
Kamers
Benedenwoning
Type

Omschrijving

Onze gelijkvloerse woning beschikt over een tuin op het zuiden. Er zijn twee slaapkamers. De badkamer en het toilet zijn vorig jaar volledig gerenoveerd. Er is een nieuwe, gasloze keuken geplaatst. In juni 2026 wordt de woning aangesloten op een warmtenet. De woning ligt in een rustige omgeving, dichtbij een winkelcentrum en het station.

Kenmerken

Bouwjaar
Onbekend
Verdieping
0
Tuin

Interesse in deze woning?

Schrijf je gratis in en neem contact op met de bewoner

Gratis inschrijven

Al een account? Inloggen

Vergelijkbare woningen in Hoorn